BV Vivienda
Descripción
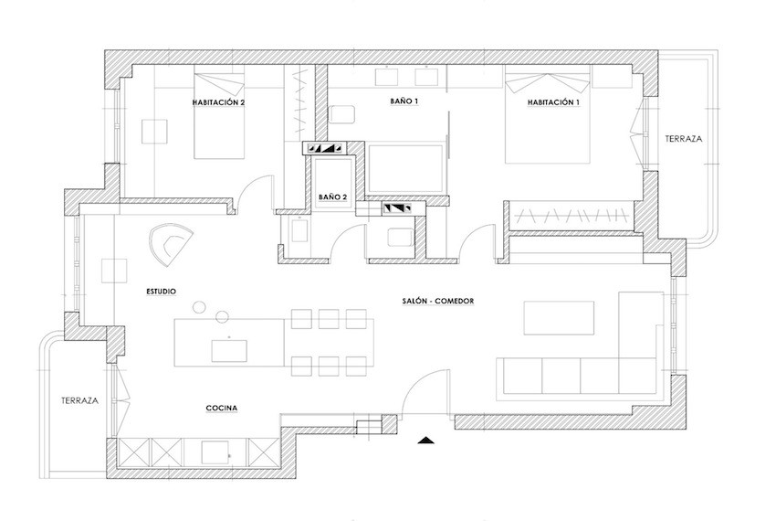
La vivienda tiene una superficie de 82 m2 de planta y originalmente distribuida en ocho estancias independientes. El proyecto de rehabilitación trata de conseguir un espacio diáfano de uso común a través de las formas simples, los materiales cálidos, las texturas y el adecuado uso de la luz.
Con la nueva intervención se compone en un solo volúmen de 47 m2 la cocina-comedor, la zona de estar y el estudio, el resto lo conforman dos habitaciones, una de ellas con baño y un baño general.
El referente protagonista del proyecto es un escultórico volumen blanco que unifica las zonas de cocinar y comedor con barra y es el elemento articulador de todo el espacio, está realizado integramente en Corian Blanco Glaciar.
En cuanto al pequeño baño general, de una rotunda simplicidad, está realizado con dos materiales como el Corian y la madera de roble blanqueada natural, el resultado es agradable y atemporal.
La paleta de materiales en el proyecto se reduce a tonos suaves y cálidos como el roble blanqueado con formatos de 5 metros de largo en suelos y paramento vertical de habitación principal, el mármol Crema Real en los revestimientos del baño principal y Corian Blanco Glaciar como elemento clave en la isla de la cocina y en el baño.
Portugalete 2013
Fotografías Jose A. Adanez
