PJ Vivienda
Descripción
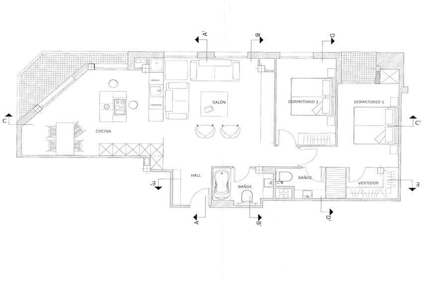
La transformación de esta luminosa vivienda de 85 m2 se planifica a partir de la necesidad de un espacio común amplio y ordenado. La nueva propuesta engloba en 50 m2 la cocina, el comedor y la zona de estar.
La zona de cocina y de estar están aisladas por medio de un cerramiento de vidrio transparente, esta solución permite disfrutar de un amplio espacio diáfano y muy luminoso.
El resto de la vivienda lo componen dos habitaciones, una de ellas con vestidor y baño integrados.Materiales como la tarima de arce, revestimientos de wegué, Corian y un panel con impresión digital de gran dimensión en el comedor ocupan las zonas comunes, en los baños el revestimiento es gres porcelánico crema.
Amurrio 2008
Fotografías Jose A. Adanez
