EA Apartamento
Descripción
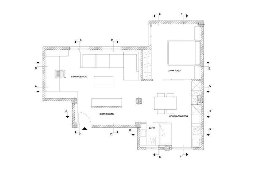
Este apartamento cuenta con una superficie de planta de 52 m2 y en su desarrollo se ha priorizado la función, aunándose con un trazado esencial y una visión ordenada y contemporánea.
La propuesta del nuevo proyecto, mantiene el espacio diáfano, con la excepción de la habitación y el baño, que permiten su aislamiento puntual por medio de correderas de luna laminar translúcida.
El programa de usos lo componen zona de estar, estudio, cocina, comedor, habitación y baño, fundidos en un solo espacio y sólo interrumpido por los planos verticales de vidrio que ordenan volúmenes y recorridos.
Los materiales que aparecen en el proyecto son de agradables texturas y aportan calidez, como la solera en madera de arce, Corian Blanco Glaciar,el elemento contenedor del estudio en arce, el mármol Crema Real Bianco en el baño y la madera de wengué como contraste en el dormitorio y en la bancada de la zona de estar.
Bilbao 2009
Fotografías Luis M. Ambrós - Susana Aréchaga
