CC Apartamento
Descripción
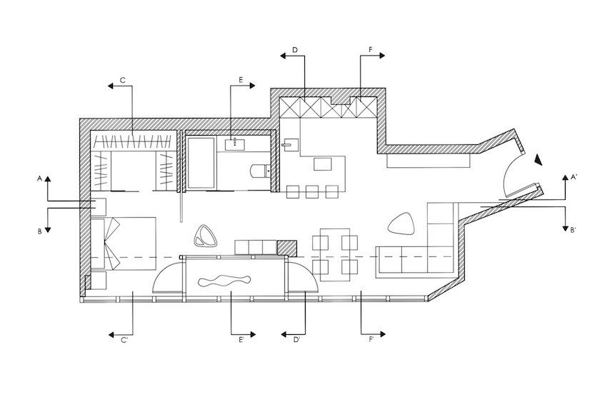
Este apartamento de 58 m2 tiene una planta rectangular muy definida, en la resolución del proyecto se han eliminado las divisiones intermedias y los espacios de uso se han abierto hacia la luz, el volúmen resultante permite una mayor fluidez y una manera mas libre de disfrutarlo. El cerramiento de fachada, realizado con muro cortina de 32 m2 de superficie, perfila los límites de la vivienda y hace posible abrir el interior hacia el exterior, con la luz como elemento protagonista.
El espacio que ha generado la nueva propuesta permite visualizar integramente toda la vivienda. La transformación es posible privatizando la habitación por medio de un panel corredero oculto. El baño está protegido con lunas de vidrio laminar translúcido y el vestidor por medio de vidrio laminar transparente gris, ello permite el paso de la luz natural y el orden visual de cada una de las estancias.
La zona de estar, el comedor y la cocina comparten el espacio común del primer plano de la vivienda manteniendo un grato equilibrio. La tarima de madera de roble blanqueado, el gres porcelánico y el Corian blanco y negro para los revestimientos continuos de la cocina, son los materiales básicos que conforman el nuevo interior.
Bilbao 2017
Fotografías Jose A. Adanez
