MG Vivienda
Descripción
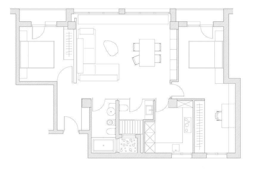
De planta rectangular y con una superficie de 80 m2 se ha definido su nueva distribución unificando la zona de estar y el distribuidor de la vivienda, creando un espacio común mucho más amplio y luminoso.
La división con la habitación principal se ha realizado con un elemento contenedor en arce que integra la puerta de paso, este espacio privado dispone de vestidor y estudio con biblioteca.
El cierre de los baños y la cocina se lleva a cabo por medio de vidrio templado con impresión digital, de manera que permita la transmisión de la luz natural a estas dependencias desde la zona de estar y el comedor.
La paleta de acabados en el proyecto, la compone la madera de arce en el pavimento y el wengué en paramentos verticales y bancadas lineales de apoyo en la zona de estar.
El gres porcelánico gris con Corian Blanco Glaciar en la cocina y el mármol Crema Real Bianco es el cálido protagonista en los baños.
Bilbao 2007
Fotografías Luis M. Ambrós - Susana Aréchaga
