MD Vivienda
Descripción
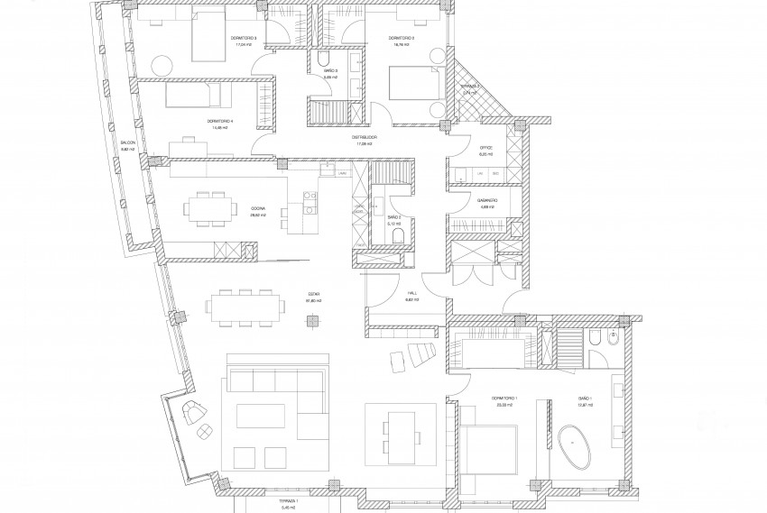
Esta vivienda dispone de una superficie de planta de 245 m2. El proyecto trata de ordenar el espacio a través de la luz y transmitir lo esencial en el conjunto de su intervención.
La zona común, de unos 112 m2 la componen la cocina, el comedor, la zona de estar y el estudio biblioteca, que se disponen en un volumen diáfano, donde unicamente la cocina permite aislar su espacio por medio de paneles correderos de vidrio.
La habitación principal con acceso desde el estudio biblioteca dispone de vestidor y baño integrado. La solución permite unificar visualmente el dormitorio, el baño y el vestidor, que mediante cerramientos parciales de vidrio transparente u opaco pueden aislar cada uno de los ámbitos.
Los acabados se perfilan con tonos suaves y neutros como la madera de roble blanqueado junto a los encuentros de paramentos verticales blancos lacados que integran las puertas de paso.
Materiales de agradables texturas como la piedra Crema Real se muestran entre acabados cálidos como el roble o mas actuales como el Corian Blanco Glaciar y el roble teñido gris. El conjunto del proyecto con marcadas pautas minimalistas pretende ser acogedor dentro de una minuciosa austeridad.
Bilbao 2011
Fotografías Jose A. Adanez
