IB Vivienda
Descripción
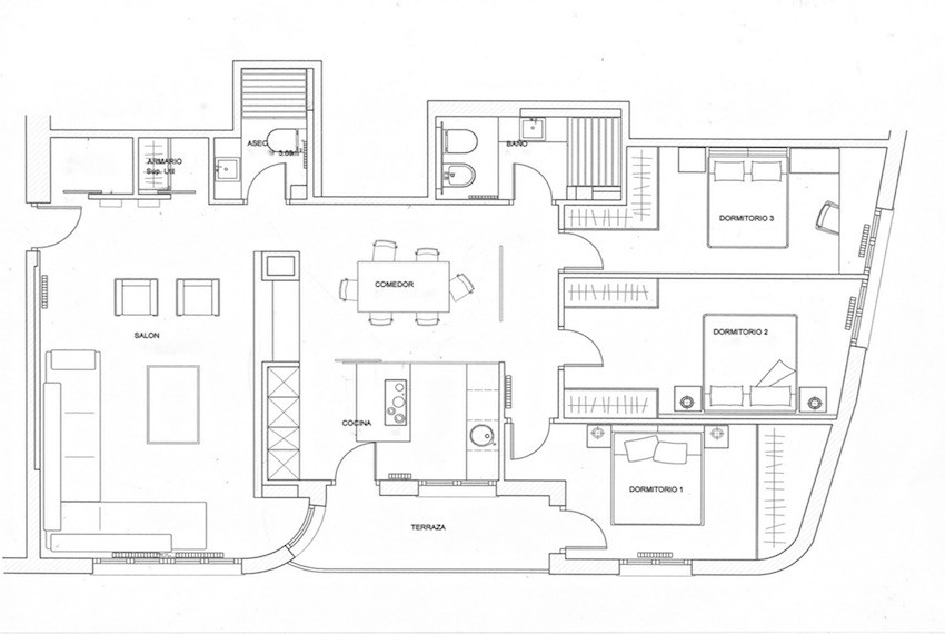
La vivienda dispone de una superficie en planta de 128 m2, en la intervención se ha ordenado su distribución en tres zonas amplias y muy definidas como zona de estar, cocina/comedor y la zona más privada destinada a las tres habitaciones.
Las estancias de uso común están abiertas y comparten todo el protagonismo en la nueva propuesta, los cierres correderos de vidrio laminar gris permiten aislar la cocina o el acceso a las habitaciones.
Una celosia blanca separa el comedor con el distribuidor de acceso a habitaciones, se ha diseñado especialmente para éste ámbito y realizada en Corian translúcido Glacier Ice.
La paleta de acabados se compone de madera de roble natural al aceite de gran formato en el suelo, gres porcelánico gris, Corian blanco en cocina y baños, así como madera de wengué en paramentos verticales y bancadas.
Los revestimientos de mármol Crema Real Bianco en los baños junto con el Corian Blanco Glaciar aportan calidez y textura.
Amurrio 2007
Fotografías Luis M. Ambrós - Susana Aréchaga
